Мотор-барабаны приводные
Пример условного обозначения при заказе
МБ4-950-7,5-0,8, что означает:
- МБ4 - тип мотор-барана;
- 950 - длина рабочей части, мм.;
- 7,5 - мощность электродвигателя, кВт;
- 0,8 - номинальная скорость ленты, м/с, которой комплектуются мотор барабаны приводные.
- Фактическая скорость ленты может отличаться от номинальной не более, чем на 10%.
- Климатическое исполнение и категория размещения У2 по ГОСТ 15150-69.
- Барабаны приводные имеют степень защиты, соответствующую IP-54 по ГОСТ 17494-72.
- Возможна поставка оборудования с техническими характеристиками, отличными от нижеуказанных.
Общее описание

РИС. 1
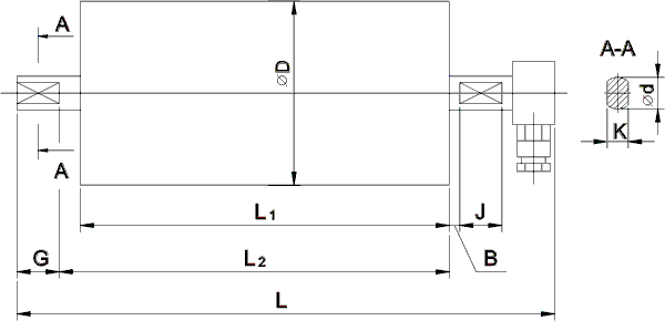
Габаритные и присоединительные размеры мотор-барабанов
Габаритные и присоединительные размеры
|
Тип |
D |
L1 |
L |
d |
К |
G |
J |
L2 |
В |
|---|---|---|---|---|---|---|---|---|---|
|
МБ-1,6 |
162 |
400 |
594 |
30 |
25 |
45 |
45 |
440 |
20 |
|
МБ219 |
219 |
375 |
562 |
40 |
30 |
50 |
50 |
400 |
12,5 |
|
МБ2 |
219 |
500 |
690 |
40 |
30 |
45 |
40 |
516 |
8 |
|
МБ325 |
325 |
425 |
637 |
40 |
30 |
50 |
50 |
475 |
25 |
|
МБЗ |
325 |
600 |
830 |
40 |
30 |
50 |
50 |
640 |
20 |
|
МБ4 |
420 |
650 |
890 |
60 |
45 |
50 |
50 |
700 |
25 |
|
МБ5 |
495 |
900 |
1140 |
70 |
55 |
50 |
50 |
950 |
25 |
Технические характеристики
|
Мощность двигателя, кВт. |
Номинальная скорость ленты, м/с (Номинальная частота вращения, об/мин). |
Диаметр барабана, мм. |
Длина рабочей части барабана, мм. (размер L1) |
|---|---|---|---|
|
МБ 1.6 |
|||
|
0.37 |
0.25(31.5); 0.28(35.5): 0.31(40); 0.35(45); 0.4(50) |
162 |
400, 500, 600,750 |
|
0,55 |
0,25(31,5); 0,28(35.5); 0.31(40); 0.35(45); 0.4(50); 0.45(56); 0.5(63); 0.56(71); 0,63(80) |
||
|
0.75 |
0.45(56); 0.5(63); 0.56(71); 0,63(80) |
||
|
МБ 2 |
|||
|
0,75 |
0.5(45); 0,56(50); 0,63(56); 0,71(63); 0,8(71) |
219 |
500.600,650,750 |
|
1.1 |
0,71(63); 0.8(71) |
500 |
|
|
0,5(45); 0,56(50); 0,63(56); 0.71(63); 0,8(71); 0,9(80); 1.0(90) |
600,650,750,950 |
||
|
1,5 |
0,5(45); 0.56(50); 0.63(56); 0.71(63); 0.8(71); 0,9(80); 1,0(90); 1.12(100); 1.25(112) |
600 |
|
|
0,5(45); 0,56(50); 0,63(56); 0,71(63); 0,8(71); 0,9(80); 1.0(90); 1,12(100); 1.25(112); 1.4(125) |
650.750,950 |
||
|
2,2 |
0.8(71); 0.9(80); 1.0(90); 1.12(100); 1.25(112) |
600 |
|
|
0,8(71); 0,9(80); 1,0(90); 1,12(100); 1,25(112); 1.4(125); 1.6(140); 1.8(160); 2.0(180); 2.24(210) |
650,750,950 |
||
|
1.4(112) |
245 |
700 |
|
|
МБЗ |
|||
|
2.2 |
0,71(45) |
325 |
650 |
|
2,2 |
0,4(25); 0,45(28); 0,5(31,5); 0.56(35.5) 0,63(40); 0,71(45); 0,8(50); 0,9(56); 1,0(63); 1,12(71); 1,25(80); 1,4(90); 1.6(100); 1.8(112); 2,0(125); 2.24(140) |
600:750:950; 1150 |
|
|
4,0 |
0,45(28); 0,5(31,5); 0,56(35,5) 0,63(40); 0,71(45); 0,8(50); 0,9(56); 1.0(63); 1.12(71); 1,25(80); 1.4(90); 1,6(100); 1,8(112); 2.0(125); 2.24(140) |
||
|
1.0(56) |
425 |
||
|
3.55(210) |
900 |
||
|
МБ4 |
|||
|
5,5 |
0,56(25); 0.63(28); 0,71(31,5); 0,8(35,5); 0.9(40); 1.0(45); 1.12(50); 1,25(56); 1.4(63); 1,6(71); 1,8(80); 2,0(90); 2.24(100); 2.5(112); 2,8(125); 3.15(140) |
420 |
650; 750; 950; 1150; 1400 |
|
7,5 |
0,56(25); 0,63(28); 0,71(31,5); 0,8(35,5); 0,9(40); 1.0(45); 1,12(50); 1,25(56); 1,4(63); 1,6(71); 1,8(80); 2,0(90); 2,24(100); 2.5(112) |
750:950; 1150; 1400 |
|
|
2.8(125); 3.15(140) |
650: 750;950:1150:1400 |
||
|
2.8(125) |
900; 1250 |
||
|
11 |
2.8(125); 3.15(140) |
650:750:950: 1150: 1400 |
|
|
2,8(125) |
900 |
||
|
15 |
2.8(125); 3.15(140) |
750:950: 1150: 1400 |
|
|
3,15(140) |
900; 1300 |
||
|
МБ5 |
|||
|
15 |
2.7(100) |
495 |
900: 1300; 1600 |
* Цены на данный тип оборудования предоставляются по запросу заказчика